Размер шрифта: A A A
Цвет сайта: A A A A
Вернуться к обычному виду
Внутригородское муниципальное образование Гагаринский муниципальный округ
официальный сайт

Инициативное предложение ТОС "Сосновый бор"

  • 2 сентября 2019

    Инициативное предложение ТОС "Сосновый бор"

    ИНИЦИАТИВНОЕ ПРЕДЛОЖЕНИЕ

    на участие в конкурсе проектов по развитию территорий города

    Севастополя, на которых осуществляет свою деятельность

    территориальное общественное самоуправление

     

    от Пшеничникова Виталия Леонидовича,

    уполномоченного представителя ТОС «Сосновый бор».

     

    1. Наименование инициативного предложения:

    «Создание общественного пространства – места досуга и занятия спортом для жителей ТОС «Сосновый бор» в г. Севастополь».

     

    2. Место реализации предложенного проекта (адрес, наименование территориального общественного самоуправления (ТОС), на территории которого планируется реализация проекта):

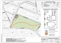
    ТОС «Сосновый бор», земельный участок в Гагаринском районе города Севастополь, рядом с ул. Рыбальченко, д. 16 (схема прилагается).

     

    3. Ориентировочный бюджет предложения:

    Общая сумма - 1 091 000,00 (Один миллион девяносто одна тысяча) руб.

    Грант - 1 000 000,00 (Один миллион) руб.

    Софинансирование - 91 000,00 (Девяносто одна тысяча) руб.

     

    4. Краткое описание сути инициативного предложения:

    Проект нацелен на формирование комфортной городской среды для жителей ТОС и прилегающих территорий путем обустройства места досуга и занятия спортом, а также расширение доступа к спортивным объектам всех групп населения.

    Совмещенная детская и спортивная площадка станет точкой притяжения для всех возрастных групп населения ТОС «Сосновый бор», послужит пропаганде здорового образа жизни, а также создаст условия для игр детям младшего возраста, занятий спортом для детей среднего и старшего возраста, проведения тренировок на уличных тренажерах для молодежи и взрослых, будет доступна для маломобильных групп населения.

     

    5. Мероприятия по реализации предложения (описание, сроки, планируемый способ реализации):

    № п/п

    Описание

    Сроки

    Планируемый способ реализации

    1.

    Проектирование и экспертиза проекта

    ноябрь 2019 - январь 2020г.

    Заключение договора со специализированными организациями

    2.

    Заключение договоров с подрядными организациями

    январь – февраль 2020 г.

    Заключение договоров с подрядными организациями

    3.

    Закупка товаров подрядными организациями

    февраль -март 2020 г.

    Заключение договоров с подрядными организациями

    4.

    Доставка оборудования подрядными организациями

    апрель – май 2020 г.

     

    5.

    Установка оборудования подрядными организациями

    май – июль 2020 г.

     

    6.

    Приемка работ заказчиком

    август 2020 г.

    Осуществление контроля, подписание актов выполненных работ

    7.

    Торжественное открытие с проведением мероприятия для жителей ТОС

    август 2020 г.

    Приглашение официальных представителей органов власти и СМИ.

    Организация праздничных мероприятий

     

    6. Предложения по балансодержателю объекта:

    Местная Администрация внутригородского муниципального образования «Гагаринский муниципальный округ» г. Севастополя.

     

    7. Ожидаемые результаты:

    На обустроенном месте отдыха будут расположены гимнастический комплекс, тренажеры, детский игровой комплекс, манеж, а так же скамьи и урны, предусмотрено беспрепятственное и безопасное передвижение малоподвижных групп населения по данной территории.

     

    8. Вопрос(ы) местного значения, на решение которого направлен проект:

    - организация и осуществление мероприятий по работе с детьми и молодежью;

    - создание условий для массового отдыха жителей внутригородского муниципального образования и организация обустройства мест массового отдыха населения;

    - обеспечение условий для развития на территории внутригородского муниципального образования физической культуры и массового спорта, организация проведения официальных физкультурно-оздоровительных и спортивных мероприятий.

     

     

    Приложения: на __ л. в 1 экз.

     

     

    «___» августа 2019              _______________/__________________________

             подпись       и     Ф.И.О. соискателя Гранта





    Дата создания: 10.09.2019 10:53:29

    Дата изменения: 10.09.2019 10:59:29

Возврат к списку